$1,188,0001224 East 59th StreetBrooklyn, New York, 11234
Request More Information
Primary Features
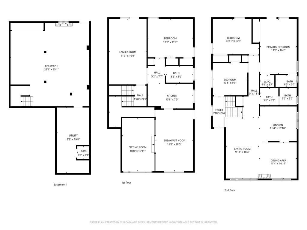
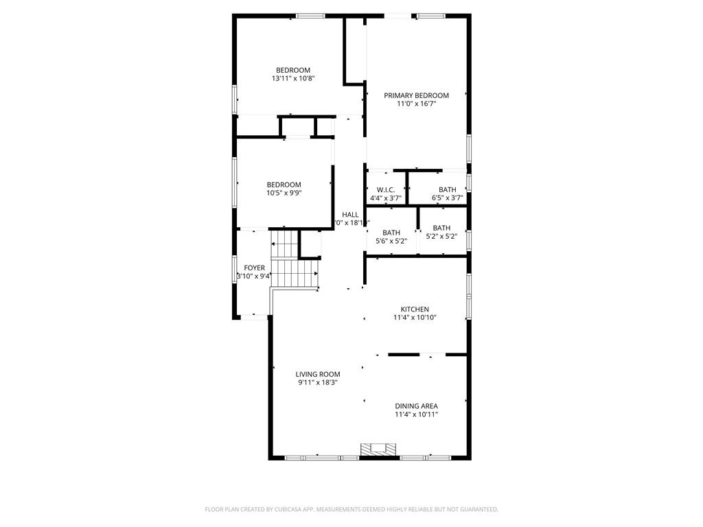
- Bedrooms: 5
- Bathrooms: 3
- Lot Size Square Feet: 4000 sqft.
- Rooms: 11
- Property Type: Residential
- Property Sub Type: Multi Family
- Year Built: 1960
Other Features
- Flooring: Hardwood,Tile
- Foundation Details: Block
- Heating: Gas
- Parking Features: 2 Spaces
- Roof: Pitched
- Utilities: n/a
- Electric: Circuit Breakers
Location
- Street Address: 1224 East 59th Street
- Neighborhood: Old Mill Basin
- City: Brooklyn
- State: New York
- County: Kings (Brooklyn)
- Postal Code: 11234
- Zoning: R3-2
Pricing & Sale Info
- List Price: $1,188,000
- Tax Annual Amount: $9,996
- MLS#: 497613
- Last Change Timestamp: Mar 12, 2026
- Source MLS: Brooklyn New York MLS
About This Property
Upcoming Open Houses
January 24 2026, 12pm - 1pm
December 21 2025, 12pm - 2pm
December 14 2025, 11:30am - 1pm
December 13 2025, 11:30am - 1pm
