$2,250,000337 48th StreetBrooklyn, New York, 11220

Primary Features

  • Lot Size Square Feet: 2000 sqft.
  • Property Type: Residential
  • Property Sub Type: Multi Family

Other Features

  • Flooring: Hardwood,Tile
  • Foundation Details: Block
  • Heating: Gas
  • Roof: Flat
  • Utilities: n/a
  • Electric: Circuit Breakers

Location

  • Street Address: 337 48th Street
  • Neighborhood: Sunset Park
  • City: Brooklyn
  • State: New York
  • County: Kings (Brooklyn)
  • Postal Code: 11220

Pricing & Sale Info

  • List Price: $2,250,000
  • MLS#: 495142
  • Last Change Timestamp: Sep 22, 2025
  • Source MLS: Brooklyn New York MLS

About This Property

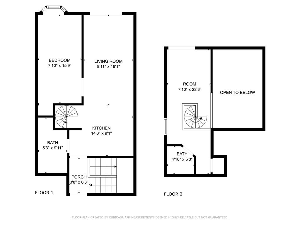
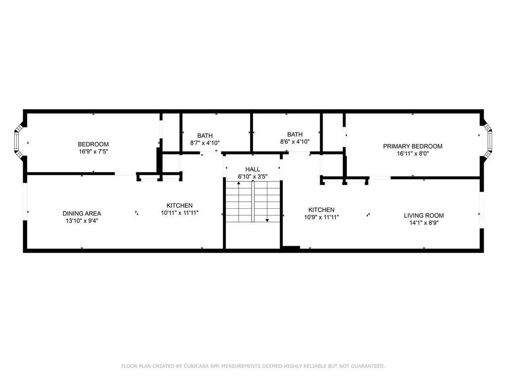
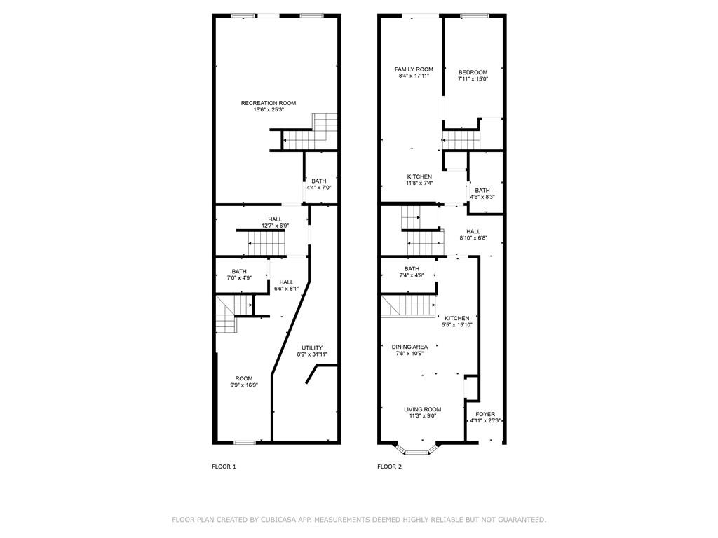
Sunset Park-Attention investors & contractors Newer Construction 90% complete VACANT 6 Family Building, first floor unit 1F is a studio apartment. Extra space in finished basement, Apt 1R has one bedroom and 1.5 baths apartment 1R also has full yard access and private usage, Apartments 2F & 2R are 1 bedroom and 1 bath units each with private terraces, Apartments 3F & 3R have 1 bedroom & 1 3/4 baths, each has a loft ,vaulted ceilings and large terraces, separate heat & hot water units for each apt, new owner may be able to configure rooms for additional bedrooms, must purchase AS IS, all cash or 1031 exchange buyers only!! Rare opportunity to purchase a property in almost new condition and VACANT!! Owner will listen to all offers MLS Approve- No Financial provide due to property is vacant