Closed270 10 St StreetBrooklyn, New York, 11215

Primary Features

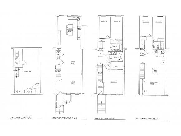
  • Bedrooms: 5
  • Bathrooms: 3.1
  • Lot Size Square Feet: 1800 sqft.
  • Rooms: 11
  • Property Type: Residential
  • Property Sub Type: Multi Family

Other Features

  • Heating: Gas
  • Roof: Flat
  • Utilities: n/a
  • Electric: 110 V

Location

  • Street Address: 270 10 St Street
  • Neighborhood: Park Slope
  • City: Brooklyn
  • State: New York
  • County: Kings (Brooklyn)
  • Postal Code: 11215
  • Zoning: R6B

Pricing & Sale Info

  • Tax Annual Amount: $2,791
  • MLS#: 370449
  • Last Change Timestamp: Jan 17, 2014
  • Source MLS: Brooklyn New York MLS

About This Property

2 Family 3,000 + sq. ft,Fully gut renoed, never lived in after renos, 1st family is an Open Layout 1st floor Triplex w/ backyard access,9 ft ceilings,amazing Kitchen w/ sub-zero & wine fridge, marble island, Bertazzoni stove, 2nd floor 3 beds, Master bedroom has private bath (his & hers sinks)& walkin closets, top floor 2 beds, open layout kitchen w/ S.S. appl, Spare no expense home!! Just move in